|
| | |
|
| | |
|
| AUXERRE - QUARTIER PORTE DE PARIS - V E N D U |
Warning: Undefined variable $ub in /var/www/clients/client1/web17/web/tools.php on line 149
Warning: Undefined variable $ub in /var/www/clients/client1/web17/web/tools.php on line 161
Deprecated: strripos(): Passing null to parameter #2 ($needle) of type string is deprecated in /var/www/clients/client1/web17/web/tools.php on line 161
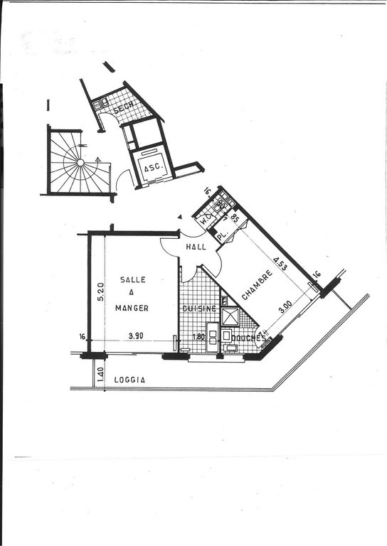
 | Proche Centre-ville, Résidence avec gardien, Appartement de 5 pièces principales situé au 6ème étage (ascenseur) avec Garage & cave ;
79,61 m² habitables (loi carrez)
Entrée avec placard, cuisine aménagée ouverte sur beau séjour (26,52 m²) donnant sur balcon, dégagement avec grands placards, 3 chambres, salle d'eau avec fenêtre, w.c. / lave-mains.
Chauffage collectif gaz (avec répartiteurs sur les radiateurs).
GARAGE & CAVE.
Agréable appartement avec fenêtres double vitrage, pvc. Porte blindée, store banne électrique sur balcon, volets roulants électriques. Jolie vue sur la ville. Bonne exposition. Garage privé. Résidence entretenue.
A VISITER.
Honoraires d'agence inclus charge Acquéreur pour 9.400 Euros soit un prix Net Vendeur de 108.000 Euros.
Nombre de lots : 268 (dont 116 usage habitations & bureaux).
Charges de copropriété : 247 Euros/mois environ (chauffage et toutes charges compris).
Charges annuelles : 2.964 Euros.
Pas de procédure en cours connue à ce jour.
Les informations sur les risques auxquels ce bien est exposé sont disponibles sur le site Géorisques : www. georisques. gouv. fr |
|
|
Warning: Undefined variable $ub in /var/www/clients/client1/web17/web/tools.php on line 149
Warning: Undefined variable $ub in /var/www/clients/client1/web17/web/tools.php on line 161
Deprecated: strripos(): Passing null to parameter #2 ($needle) of type string is deprecated in /var/www/clients/client1/web17/web/tools.php on line 161

Warning: Undefined variable $ub in /var/www/clients/client1/web17/web/tools.php on line 149
Warning: Undefined variable $ub in /var/www/clients/client1/web17/web/tools.php on line 161
Deprecated: strripos(): Passing null to parameter #2 ($needle) of type string is deprecated in /var/www/clients/client1/web17/web/tools.php on line 161

Warning: Undefined variable $ub in /var/www/clients/client1/web17/web/tools.php on line 149
Warning: Undefined variable $ub in /var/www/clients/client1/web17/web/tools.php on line 161
Deprecated: strripos(): Passing null to parameter #2 ($needle) of type string is deprecated in /var/www/clients/client1/web17/web/tools.php on line 161

Warning: Undefined variable $ub in /var/www/clients/client1/web17/web/tools.php on line 149
Warning: Undefined variable $ub in /var/www/clients/client1/web17/web/tools.php on line 161
Deprecated: strripos(): Passing null to parameter #2 ($needle) of type string is deprecated in /var/www/clients/client1/web17/web/tools.php on line 161

Warning: Undefined variable $ub in /var/www/clients/client1/web17/web/tools.php on line 149
Warning: Undefined variable $ub in /var/www/clients/client1/web17/web/tools.php on line 161
Deprecated: strripos(): Passing null to parameter #2 ($needle) of type string is deprecated in /var/www/clients/client1/web17/web/tools.php on line 161

Warning: Undefined variable $ub in /var/www/clients/client1/web17/web/tools.php on line 149
Warning: Undefined variable $ub in /var/www/clients/client1/web17/web/tools.php on line 161
Deprecated: strripos(): Passing null to parameter #2 ($needle) of type string is deprecated in /var/www/clients/client1/web17/web/tools.php on line 161

Warning: Undefined variable $ub in /var/www/clients/client1/web17/web/tools.php on line 149
Warning: Undefined variable $ub in /var/www/clients/client1/web17/web/tools.php on line 161
Deprecated: strripos(): Passing null to parameter #2 ($needle) of type string is deprecated in /var/www/clients/client1/web17/web/tools.php on line 161

Warning: Undefined variable $ub in /var/www/clients/client1/web17/web/tools.php on line 149
Warning: Undefined variable $ub in /var/www/clients/client1/web17/web/tools.php on line 161
Deprecated: strripos(): Passing null to parameter #2 ($needle) of type string is deprecated in /var/www/clients/client1/web17/web/tools.php on line 161

Warning: Undefined variable $ub in /var/www/clients/client1/web17/web/tools.php on line 149
Warning: Undefined variable $ub in /var/www/clients/client1/web17/web/tools.php on line 161
Deprecated: strripos(): Passing null to parameter #2 ($needle) of type string is deprecated in /var/www/clients/client1/web17/web/tools.php on line 161

Warning: Undefined variable $ub in /var/www/clients/client1/web17/web/tools.php on line 149
Warning: Undefined variable $ub in /var/www/clients/client1/web17/web/tools.php on line 161
Deprecated: strripos(): Passing null to parameter #2 ($needle) of type string is deprecated in /var/www/clients/client1/web17/web/tools.php on line 161

Warning: Undefined variable $ub in /var/www/clients/client1/web17/web/tools.php on line 149
Warning: Undefined variable $ub in /var/www/clients/client1/web17/web/tools.php on line 161
Deprecated: strripos(): Passing null to parameter #2 ($needle) of type string is deprecated in /var/www/clients/client1/web17/web/tools.php on line 161

Warning: Undefined variable $ub in /var/www/clients/client1/web17/web/tools.php on line 149
Warning: Undefined variable $ub in /var/www/clients/client1/web17/web/tools.php on line 161
Deprecated: strripos(): Passing null to parameter #2 ($needle) of type string is deprecated in /var/www/clients/client1/web17/web/tools.php on line 161

Warning: Undefined variable $ub in /var/www/clients/client1/web17/web/tools.php on line 149
Warning: Undefined variable $ub in /var/www/clients/client1/web17/web/tools.php on line 161
Deprecated: strripos(): Passing null to parameter #2 ($needle) of type string is deprecated in /var/www/clients/client1/web17/web/tools.php on line 161
 |
|
| Ref.: 4641 | | 117 400,00 € TTC |
|
| | | | |
| | |
|
| EXCLUSIF AUXERRE - PROCHE CENTRE VILLE |
Warning: Undefined variable $ub in /var/www/clients/client1/web17/web/tools.php on line 149
Warning: Undefined variable $ub in /var/www/clients/client1/web17/web/tools.php on line 161
Deprecated: strripos(): Passing null to parameter #2 ($needle) of type string is deprecated in /var/www/clients/client1/web17/web/tools.php on line 161
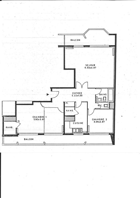
 | Résidentiel, Résidence de standing, Appartement de 2 pièces principales sis au 2ème étage avec ascenseur, 48,55 m² habitables (loi carrez) ;
Entrée parquet, cuisine aménagée, séjour parquet donnant sur balcon, 1 chambre parquet (placard) et donnant également sur balcon, salle de bains (fenêtre), w.c.
Chauffage collectif Gaz (en attente raccordement prévu à BIOMASSE)
Cellier sur le palier.
Cave en sous-sol et Parking privatif extérieur.
Agréable Appartement lumineux.
Usage professionnel possible.
A VISITER.
Honoraires d'agence inclus charge vendeur.
Nombre de lots : 79 (dont 26 usage habitations & bureaux) sur 2 Bâtiments.
Charges de copropriété : 155 Euros/mois environ (chauffage et eau compris).
Charges annuelles : 1.860 Euros.
Pas de procédure en cours connue à ce jour.
Les informations sur les risques auxquels ce bien est exposé sont disponibles sur le site Géorisques : www. georisques. gouv. fr |
|
|
Warning: Undefined variable $ub in /var/www/clients/client1/web17/web/tools.php on line 149
Warning: Undefined variable $ub in /var/www/clients/client1/web17/web/tools.php on line 161
Deprecated: strripos(): Passing null to parameter #2 ($needle) of type string is deprecated in /var/www/clients/client1/web17/web/tools.php on line 161

Warning: Undefined variable $ub in /var/www/clients/client1/web17/web/tools.php on line 149
Warning: Undefined variable $ub in /var/www/clients/client1/web17/web/tools.php on line 161
Deprecated: strripos(): Passing null to parameter #2 ($needle) of type string is deprecated in /var/www/clients/client1/web17/web/tools.php on line 161

Warning: Undefined variable $ub in /var/www/clients/client1/web17/web/tools.php on line 149
Warning: Undefined variable $ub in /var/www/clients/client1/web17/web/tools.php on line 161
Deprecated: strripos(): Passing null to parameter #2 ($needle) of type string is deprecated in /var/www/clients/client1/web17/web/tools.php on line 161

Warning: Undefined variable $ub in /var/www/clients/client1/web17/web/tools.php on line 149
Warning: Undefined variable $ub in /var/www/clients/client1/web17/web/tools.php on line 161
Deprecated: strripos(): Passing null to parameter #2 ($needle) of type string is deprecated in /var/www/clients/client1/web17/web/tools.php on line 161

Warning: Undefined variable $ub in /var/www/clients/client1/web17/web/tools.php on line 149
Warning: Undefined variable $ub in /var/www/clients/client1/web17/web/tools.php on line 161
Deprecated: strripos(): Passing null to parameter #2 ($needle) of type string is deprecated in /var/www/clients/client1/web17/web/tools.php on line 161

Warning: Undefined variable $ub in /var/www/clients/client1/web17/web/tools.php on line 149
Warning: Undefined variable $ub in /var/www/clients/client1/web17/web/tools.php on line 161
Deprecated: strripos(): Passing null to parameter #2 ($needle) of type string is deprecated in /var/www/clients/client1/web17/web/tools.php on line 161

Warning: Undefined variable $ub in /var/www/clients/client1/web17/web/tools.php on line 149
Warning: Undefined variable $ub in /var/www/clients/client1/web17/web/tools.php on line 161
Deprecated: strripos(): Passing null to parameter #2 ($needle) of type string is deprecated in /var/www/clients/client1/web17/web/tools.php on line 161

Warning: Undefined variable $ub in /var/www/clients/client1/web17/web/tools.php on line 149
Warning: Undefined variable $ub in /var/www/clients/client1/web17/web/tools.php on line 161
Deprecated: strripos(): Passing null to parameter #2 ($needle) of type string is deprecated in /var/www/clients/client1/web17/web/tools.php on line 161
 |
|
| Ref.: 4639 | | 100 600,00 € TTC |
|
| | | | |
| | |
|
| AUXERRE - PROCHE CENTRE VILLE - AU CALME |
Warning: Undefined variable $ub in /var/www/clients/client1/web17/web/tools.php on line 149
Warning: Undefined variable $ub in /var/www/clients/client1/web17/web/tools.php on line 161
Deprecated: strripos(): Passing null to parameter #2 ($needle) of type string is deprecated in /var/www/clients/client1/web17/web/tools.php on line 161
 | Dans bonne Résidence, Appartement de 4 pièces principales au 3ème et dernier étage avec ascenseur - 82,28 m² habitables (loi carrez), comprenant :
Entrée/dégagement, cuisine aménagée, petit cellier, séjour (26,66 m²) donnant sur balcon-terrasse, 3 chambres dont 1 avec petit dressing et donnant toutes les 3 sur autre balcon, salle d'eau, w.c.
Chauffage collectif Gaz.
Cave & Emplacement de parking privé en sous-sol.
Honoraires d'agence charge acquéreur pour 11.000 Euros soit un prix net Vendeur de 140.000 Euros.
Ce bien est proposé par un collaborateur Agent commercial.
Appartement en bon état général, Résidence sécurisée, dernier étage. Très proche Centre ville. A VISITER.
Nombre de lots : 59 (dont 22 usage habitations & bureaux) sur 1 Bâtiment.
Charges de copropriété : 530 Euros/mois environ (chauffage compris et toutes charges).
Charges annuelles : 6.360 Euros.
Pas de procédure en cours connue à ce jour.
Les informations sur les risques auxquels ce bien est exposé sont disponibles sur le site Géorisques : www. georisques. gouv. fr
|
|
|
Warning: Undefined variable $ub in /var/www/clients/client1/web17/web/tools.php on line 149
Warning: Undefined variable $ub in /var/www/clients/client1/web17/web/tools.php on line 161
Deprecated: strripos(): Passing null to parameter #2 ($needle) of type string is deprecated in /var/www/clients/client1/web17/web/tools.php on line 161

Warning: Undefined variable $ub in /var/www/clients/client1/web17/web/tools.php on line 149
Warning: Undefined variable $ub in /var/www/clients/client1/web17/web/tools.php on line 161
Deprecated: strripos(): Passing null to parameter #2 ($needle) of type string is deprecated in /var/www/clients/client1/web17/web/tools.php on line 161

Warning: Undefined variable $ub in /var/www/clients/client1/web17/web/tools.php on line 149
Warning: Undefined variable $ub in /var/www/clients/client1/web17/web/tools.php on line 161
Deprecated: strripos(): Passing null to parameter #2 ($needle) of type string is deprecated in /var/www/clients/client1/web17/web/tools.php on line 161

Warning: Undefined variable $ub in /var/www/clients/client1/web17/web/tools.php on line 149
Warning: Undefined variable $ub in /var/www/clients/client1/web17/web/tools.php on line 161
Deprecated: strripos(): Passing null to parameter #2 ($needle) of type string is deprecated in /var/www/clients/client1/web17/web/tools.php on line 161

Warning: Undefined variable $ub in /var/www/clients/client1/web17/web/tools.php on line 149
Warning: Undefined variable $ub in /var/www/clients/client1/web17/web/tools.php on line 161
Deprecated: strripos(): Passing null to parameter #2 ($needle) of type string is deprecated in /var/www/clients/client1/web17/web/tools.php on line 161

Warning: Undefined variable $ub in /var/www/clients/client1/web17/web/tools.php on line 149
Warning: Undefined variable $ub in /var/www/clients/client1/web17/web/tools.php on line 161
Deprecated: strripos(): Passing null to parameter #2 ($needle) of type string is deprecated in /var/www/clients/client1/web17/web/tools.php on line 161
 |
|
| Ref.: 4635 | | 151 000,00 € TTC |
|
| | | | |
| | |
|
| EXCLUSIF AUXERRE - ARQUEBUSE - V E N D U - |
Warning: Undefined variable $ub in /var/www/clients/client1/web17/web/tools.php on line 149
Warning: Undefined variable $ub in /var/www/clients/client1/web17/web/tools.php on line 161
Deprecated: strripos(): Passing null to parameter #2 ($needle) of type string is deprecated in /var/www/clients/client1/web17/web/tools.php on line 161
 | Bel Appartement de 4 pièces principales dans Résidence de standing, au 1er étage (2ème niveau) avec ascenseur ;
96,20 m² habitables (loi carrez).
Entrée (placard), w.c./lave-mains, cuisine aménagée et séjour (33,56 m²) donnant tous deux sur balcon-terrasse, dégagement, 2 chambres avec placard, salle d'eau/w.c.
Balcon-terrasse (7,95 m²).
Chauffage collectif Gaz.
Garage fermé et Cave en sous-sol desservis par ascenseur.
Emplacement de qualité, Résidence aux normes handicapés. Volets roulants électriques, porte blindée, climatisation dans séjour. Jolie vue.
A VISITER.
Honoraires d'agence inclus charge Vendeur.
Nombre de lots : 108 (dont 37 usage habitations & bureaux) sur 2 Bâtiments.
Charges de copropriété : 346 Euros/mois environ (chauffage compris et toutes charges).
Charges annuelles : 4.152 Euros.
Pas de procédure en cours connue à ce jour.
Les informations sur les risques auxquels ce bien est exposé sont disponibles sur le site Géorisques : www. georisques. gouv. fr |
|
|
Warning: Undefined variable $ub in /var/www/clients/client1/web17/web/tools.php on line 149
Warning: Undefined variable $ub in /var/www/clients/client1/web17/web/tools.php on line 161
Deprecated: strripos(): Passing null to parameter #2 ($needle) of type string is deprecated in /var/www/clients/client1/web17/web/tools.php on line 161

Warning: Undefined variable $ub in /var/www/clients/client1/web17/web/tools.php on line 149
Warning: Undefined variable $ub in /var/www/clients/client1/web17/web/tools.php on line 161
Deprecated: strripos(): Passing null to parameter #2 ($needle) of type string is deprecated in /var/www/clients/client1/web17/web/tools.php on line 161

Warning: Undefined variable $ub in /var/www/clients/client1/web17/web/tools.php on line 149
Warning: Undefined variable $ub in /var/www/clients/client1/web17/web/tools.php on line 161
Deprecated: strripos(): Passing null to parameter #2 ($needle) of type string is deprecated in /var/www/clients/client1/web17/web/tools.php on line 161

Warning: Undefined variable $ub in /var/www/clients/client1/web17/web/tools.php on line 149
Warning: Undefined variable $ub in /var/www/clients/client1/web17/web/tools.php on line 161
Deprecated: strripos(): Passing null to parameter #2 ($needle) of type string is deprecated in /var/www/clients/client1/web17/web/tools.php on line 161

Warning: Undefined variable $ub in /var/www/clients/client1/web17/web/tools.php on line 149
Warning: Undefined variable $ub in /var/www/clients/client1/web17/web/tools.php on line 161
Deprecated: strripos(): Passing null to parameter #2 ($needle) of type string is deprecated in /var/www/clients/client1/web17/web/tools.php on line 161

Warning: Undefined variable $ub in /var/www/clients/client1/web17/web/tools.php on line 149
Warning: Undefined variable $ub in /var/www/clients/client1/web17/web/tools.php on line 161
Deprecated: strripos(): Passing null to parameter #2 ($needle) of type string is deprecated in /var/www/clients/client1/web17/web/tools.php on line 161

Warning: Undefined variable $ub in /var/www/clients/client1/web17/web/tools.php on line 149
Warning: Undefined variable $ub in /var/www/clients/client1/web17/web/tools.php on line 161
Deprecated: strripos(): Passing null to parameter #2 ($needle) of type string is deprecated in /var/www/clients/client1/web17/web/tools.php on line 161

Warning: Undefined variable $ub in /var/www/clients/client1/web17/web/tools.php on line 149
Warning: Undefined variable $ub in /var/www/clients/client1/web17/web/tools.php on line 161
Deprecated: strripos(): Passing null to parameter #2 ($needle) of type string is deprecated in /var/www/clients/client1/web17/web/tools.php on line 161

Warning: Undefined variable $ub in /var/www/clients/client1/web17/web/tools.php on line 149
Warning: Undefined variable $ub in /var/www/clients/client1/web17/web/tools.php on line 161
Deprecated: strripos(): Passing null to parameter #2 ($needle) of type string is deprecated in /var/www/clients/client1/web17/web/tools.php on line 161

Warning: Undefined variable $ub in /var/www/clients/client1/web17/web/tools.php on line 149
Warning: Undefined variable $ub in /var/www/clients/client1/web17/web/tools.php on line 161
Deprecated: strripos(): Passing null to parameter #2 ($needle) of type string is deprecated in /var/www/clients/client1/web17/web/tools.php on line 161

Warning: Undefined variable $ub in /var/www/clients/client1/web17/web/tools.php on line 149
Warning: Undefined variable $ub in /var/www/clients/client1/web17/web/tools.php on line 161
Deprecated: strripos(): Passing null to parameter #2 ($needle) of type string is deprecated in /var/www/clients/client1/web17/web/tools.php on line 161
 |
|
| Ref.: 4624 | | 287 000,00 € TTC |
|
| | | | |
| | |
|
| EXCLUSIF AUXERRE - COEUR DE VILLE, AU PIED DES COMMERCES |
Warning: Undefined variable $ub in /var/www/clients/client1/web17/web/tools.php on line 149
Warning: Undefined variable $ub in /var/www/clients/client1/web17/web/tools.php on line 161
Deprecated: strripos(): Passing null to parameter #2 ($needle) of type string is deprecated in /var/www/clients/client1/web17/web/tools.php on line 161
 | Superbe Appartement duplex de 6/7 pièces principales au 2ème & 3ème étage avec ascenseur dans bonne Résidence - 196,10 m² habitables (loi carrez) - Au 3ème étage (accès privatif avec grande terrasse privative) - Entrée avec dégagement, placard, cuisine aménagée, beau séjour de 70 m², 1 chambre avec salle de bains, w.c./lave-mains ;
Au 2ème étage : Salon de 32 m², dégagement, 3 chambres, salle de bains, w.c. lingerie (avec sortie au 2ème étage).
Terrasse privative au 4ème étage.
Chauffage collectif Gaz.
Idéalement situé - au calme, Ensemble spacieux, lumineux, belles terrasses privatives avec jolie vue panoramique sur la ville.
Honoraires d'agence inclus charge acquéreur pour 20.000 Euros soit un prix Net Vendeur de 330.000 Euros.
Nombre de lots : 47 (dont 25 usage habitations & bureaux).
Charges de copropriété : 840 Euros/mois environ (chauffage compris et autres charges).
Pas de procédure en cours connue à ce jour.
Les informations sur les risques auxquels ce bien est exposé sont disponibles sur le site Géorisques : www. georisques. gouv. fr |
|
|
Warning: Undefined variable $ub in /var/www/clients/client1/web17/web/tools.php on line 149
Warning: Undefined variable $ub in /var/www/clients/client1/web17/web/tools.php on line 161
Deprecated: strripos(): Passing null to parameter #2 ($needle) of type string is deprecated in /var/www/clients/client1/web17/web/tools.php on line 161

Warning: Undefined variable $ub in /var/www/clients/client1/web17/web/tools.php on line 149
Warning: Undefined variable $ub in /var/www/clients/client1/web17/web/tools.php on line 161
Deprecated: strripos(): Passing null to parameter #2 ($needle) of type string is deprecated in /var/www/clients/client1/web17/web/tools.php on line 161

Warning: Undefined variable $ub in /var/www/clients/client1/web17/web/tools.php on line 149
Warning: Undefined variable $ub in /var/www/clients/client1/web17/web/tools.php on line 161
Deprecated: strripos(): Passing null to parameter #2 ($needle) of type string is deprecated in /var/www/clients/client1/web17/web/tools.php on line 161

Warning: Undefined variable $ub in /var/www/clients/client1/web17/web/tools.php on line 149
Warning: Undefined variable $ub in /var/www/clients/client1/web17/web/tools.php on line 161
Deprecated: strripos(): Passing null to parameter #2 ($needle) of type string is deprecated in /var/www/clients/client1/web17/web/tools.php on line 161

Warning: Undefined variable $ub in /var/www/clients/client1/web17/web/tools.php on line 149
Warning: Undefined variable $ub in /var/www/clients/client1/web17/web/tools.php on line 161
Deprecated: strripos(): Passing null to parameter #2 ($needle) of type string is deprecated in /var/www/clients/client1/web17/web/tools.php on line 161

Warning: Undefined variable $ub in /var/www/clients/client1/web17/web/tools.php on line 149
Warning: Undefined variable $ub in /var/www/clients/client1/web17/web/tools.php on line 161
Deprecated: strripos(): Passing null to parameter #2 ($needle) of type string is deprecated in /var/www/clients/client1/web17/web/tools.php on line 161

Warning: Undefined variable $ub in /var/www/clients/client1/web17/web/tools.php on line 149
Warning: Undefined variable $ub in /var/www/clients/client1/web17/web/tools.php on line 161
Deprecated: strripos(): Passing null to parameter #2 ($needle) of type string is deprecated in /var/www/clients/client1/web17/web/tools.php on line 161

Warning: Undefined variable $ub in /var/www/clients/client1/web17/web/tools.php on line 149
Warning: Undefined variable $ub in /var/www/clients/client1/web17/web/tools.php on line 161
Deprecated: strripos(): Passing null to parameter #2 ($needle) of type string is deprecated in /var/www/clients/client1/web17/web/tools.php on line 161

Warning: Undefined variable $ub in /var/www/clients/client1/web17/web/tools.php on line 149
Warning: Undefined variable $ub in /var/www/clients/client1/web17/web/tools.php on line 161
Deprecated: strripos(): Passing null to parameter #2 ($needle) of type string is deprecated in /var/www/clients/client1/web17/web/tools.php on line 161

Warning: Undefined variable $ub in /var/www/clients/client1/web17/web/tools.php on line 149
Warning: Undefined variable $ub in /var/www/clients/client1/web17/web/tools.php on line 161
Deprecated: strripos(): Passing null to parameter #2 ($needle) of type string is deprecated in /var/www/clients/client1/web17/web/tools.php on line 161

Warning: Undefined variable $ub in /var/www/clients/client1/web17/web/tools.php on line 149
Warning: Undefined variable $ub in /var/www/clients/client1/web17/web/tools.php on line 161
Deprecated: strripos(): Passing null to parameter #2 ($needle) of type string is deprecated in /var/www/clients/client1/web17/web/tools.php on line 161
 |
|
| Ref.: 4603 | | 350 000,00 € TTC |
|
| | | | |
| | |
|
| EXCLUSIF AUXERRE - CENTRE VILLE |
Warning: Undefined variable $ub in /var/www/clients/client1/web17/web/tools.php on line 149
Warning: Undefined variable $ub in /var/www/clients/client1/web17/web/tools.php on line 161
Deprecated: strripos(): Passing null to parameter #2 ($needle) of type string is deprecated in /var/www/clients/client1/web17/web/tools.php on line 161
 | Quartier historique, proche quai de la Marine, Local professionnel (possibilité Appartement) situé en Rez-de-chaussée dans petite copropriété - 127 m² environ :
2 grandes pièces, réserves et sanitaires/w.c. ;
Sous-sol : 2 grande pièces/caves voûtées.
Chauffage individuel Gaz.
Local professionnel de charme dans immeuble à pans de bois. Beaux volumes. A VISITER.
Honoraires d'agence inclus charge vendeur.
Faibles charges 385 Euros/an (uniquement assurance de l'immeuble).
Pas de procédure en cours connue à ce jour.
Les informations sur les risques auxquels ce bien est exposé sont disponibles sur le site Géorisques : www. georisques. gouv. fr |
|
|
Warning: Undefined variable $ub in /var/www/clients/client1/web17/web/tools.php on line 149
Warning: Undefined variable $ub in /var/www/clients/client1/web17/web/tools.php on line 161
Deprecated: strripos(): Passing null to parameter #2 ($needle) of type string is deprecated in /var/www/clients/client1/web17/web/tools.php on line 161

Warning: Undefined variable $ub in /var/www/clients/client1/web17/web/tools.php on line 149
Warning: Undefined variable $ub in /var/www/clients/client1/web17/web/tools.php on line 161
Deprecated: strripos(): Passing null to parameter #2 ($needle) of type string is deprecated in /var/www/clients/client1/web17/web/tools.php on line 161

Warning: Undefined variable $ub in /var/www/clients/client1/web17/web/tools.php on line 149
Warning: Undefined variable $ub in /var/www/clients/client1/web17/web/tools.php on line 161
Deprecated: strripos(): Passing null to parameter #2 ($needle) of type string is deprecated in /var/www/clients/client1/web17/web/tools.php on line 161

Warning: Undefined variable $ub in /var/www/clients/client1/web17/web/tools.php on line 149
Warning: Undefined variable $ub in /var/www/clients/client1/web17/web/tools.php on line 161
Deprecated: strripos(): Passing null to parameter #2 ($needle) of type string is deprecated in /var/www/clients/client1/web17/web/tools.php on line 161

Warning: Undefined variable $ub in /var/www/clients/client1/web17/web/tools.php on line 149
Warning: Undefined variable $ub in /var/www/clients/client1/web17/web/tools.php on line 161
Deprecated: strripos(): Passing null to parameter #2 ($needle) of type string is deprecated in /var/www/clients/client1/web17/web/tools.php on line 161

Warning: Undefined variable $ub in /var/www/clients/client1/web17/web/tools.php on line 149
Warning: Undefined variable $ub in /var/www/clients/client1/web17/web/tools.php on line 161
Deprecated: strripos(): Passing null to parameter #2 ($needle) of type string is deprecated in /var/www/clients/client1/web17/web/tools.php on line 161

Warning: Undefined variable $ub in /var/www/clients/client1/web17/web/tools.php on line 149
Warning: Undefined variable $ub in /var/www/clients/client1/web17/web/tools.php on line 161
Deprecated: strripos(): Passing null to parameter #2 ($needle) of type string is deprecated in /var/www/clients/client1/web17/web/tools.php on line 161

Warning: Undefined variable $ub in /var/www/clients/client1/web17/web/tools.php on line 149
Warning: Undefined variable $ub in /var/www/clients/client1/web17/web/tools.php on line 161
Deprecated: strripos(): Passing null to parameter #2 ($needle) of type string is deprecated in /var/www/clients/client1/web17/web/tools.php on line 161

Warning: Undefined variable $ub in /var/www/clients/client1/web17/web/tools.php on line 149
Warning: Undefined variable $ub in /var/www/clients/client1/web17/web/tools.php on line 161
Deprecated: strripos(): Passing null to parameter #2 ($needle) of type string is deprecated in /var/www/clients/client1/web17/web/tools.php on line 161

Warning: Undefined variable $ub in /var/www/clients/client1/web17/web/tools.php on line 149
Warning: Undefined variable $ub in /var/www/clients/client1/web17/web/tools.php on line 161
Deprecated: strripos(): Passing null to parameter #2 ($needle) of type string is deprecated in /var/www/clients/client1/web17/web/tools.php on line 161

Warning: Undefined variable $ub in /var/www/clients/client1/web17/web/tools.php on line 149
Warning: Undefined variable $ub in /var/www/clients/client1/web17/web/tools.php on line 161
Deprecated: strripos(): Passing null to parameter #2 ($needle) of type string is deprecated in /var/www/clients/client1/web17/web/tools.php on line 161
 |
|
| Ref.: 4600 | | 150 000,00 € TTC |
|
| | | | |
| | |
|
| AUXERRE - CENTRE VILLE, PROCHE TOUS COMMERCES |
Warning: Undefined variable $ub in /var/www/clients/client1/web17/web/tools.php on line 149
Warning: Undefined variable $ub in /var/www/clients/client1/web17/web/tools.php on line 161
Deprecated: strripos(): Passing null to parameter #2 ($needle) of type string is deprecated in /var/www/clients/client1/web17/web/tools.php on line 161
 | Résidence de standing, bel appartement de 5 pièces principales, 106,25 m² habitables (surface loi carrez), 2ème étage avec ascenseur; Entrée, cuisine aménagée, séjour-salon (38,55 m²) donnant sur loggia- balcon, dégagement avec grand placard, 3 chambres, w.c./lave-mains, salle d'eau/w.c., salle de bains.
Chauffage collectif Gaz.
Grande loggia-balcon tout autour de l'appartement.
Parking et Cave en sous-sol (desservis par Ascenseur).
Bel appartement très lumineux. Store banne et volets roulants électriques sur toutes les fenêtres. Jolie vue sur jardin et vieille ville. Bonne exposition - A VISITER.
Honoraires d'agence inclus charge Acquéreur pour 15.000 Euros soit un prix net vendeur de 270.000 Euros.
Nombre de lots : 257 (dont 87 usage habitations & bureaux) sur 2 Bâtiments.
Charges de copropriété : 650 Euros/mois environ (chauffage compris, eau chaude, cotisations loi Alur, syndic, gardien etc...).
Charges annuelles : 7.800 Euros environ.
Pas de procédure en cours connue à ce jour.
Les informations sur les risques auxquels ce bien est exposé sont disponibles sur le site Géorisques : www. georisques. gouv. fr |
|
|
Warning: Undefined variable $ub in /var/www/clients/client1/web17/web/tools.php on line 149
Warning: Undefined variable $ub in /var/www/clients/client1/web17/web/tools.php on line 161
Deprecated: strripos(): Passing null to parameter #2 ($needle) of type string is deprecated in /var/www/clients/client1/web17/web/tools.php on line 161

Warning: Undefined variable $ub in /var/www/clients/client1/web17/web/tools.php on line 149
Warning: Undefined variable $ub in /var/www/clients/client1/web17/web/tools.php on line 161
Deprecated: strripos(): Passing null to parameter #2 ($needle) of type string is deprecated in /var/www/clients/client1/web17/web/tools.php on line 161

Warning: Undefined variable $ub in /var/www/clients/client1/web17/web/tools.php on line 149
Warning: Undefined variable $ub in /var/www/clients/client1/web17/web/tools.php on line 161
Deprecated: strripos(): Passing null to parameter #2 ($needle) of type string is deprecated in /var/www/clients/client1/web17/web/tools.php on line 161

Warning: Undefined variable $ub in /var/www/clients/client1/web17/web/tools.php on line 149
Warning: Undefined variable $ub in /var/www/clients/client1/web17/web/tools.php on line 161
Deprecated: strripos(): Passing null to parameter #2 ($needle) of type string is deprecated in /var/www/clients/client1/web17/web/tools.php on line 161

Warning: Undefined variable $ub in /var/www/clients/client1/web17/web/tools.php on line 149
Warning: Undefined variable $ub in /var/www/clients/client1/web17/web/tools.php on line 161
Deprecated: strripos(): Passing null to parameter #2 ($needle) of type string is deprecated in /var/www/clients/client1/web17/web/tools.php on line 161

Warning: Undefined variable $ub in /var/www/clients/client1/web17/web/tools.php on line 149
Warning: Undefined variable $ub in /var/www/clients/client1/web17/web/tools.php on line 161
Deprecated: strripos(): Passing null to parameter #2 ($needle) of type string is deprecated in /var/www/clients/client1/web17/web/tools.php on line 161

Warning: Undefined variable $ub in /var/www/clients/client1/web17/web/tools.php on line 149
Warning: Undefined variable $ub in /var/www/clients/client1/web17/web/tools.php on line 161
Deprecated: strripos(): Passing null to parameter #2 ($needle) of type string is deprecated in /var/www/clients/client1/web17/web/tools.php on line 161

Warning: Undefined variable $ub in /var/www/clients/client1/web17/web/tools.php on line 149
Warning: Undefined variable $ub in /var/www/clients/client1/web17/web/tools.php on line 161
Deprecated: strripos(): Passing null to parameter #2 ($needle) of type string is deprecated in /var/www/clients/client1/web17/web/tools.php on line 161

Warning: Undefined variable $ub in /var/www/clients/client1/web17/web/tools.php on line 149
Warning: Undefined variable $ub in /var/www/clients/client1/web17/web/tools.php on line 161
Deprecated: strripos(): Passing null to parameter #2 ($needle) of type string is deprecated in /var/www/clients/client1/web17/web/tools.php on line 161

Warning: Undefined variable $ub in /var/www/clients/client1/web17/web/tools.php on line 149
Warning: Undefined variable $ub in /var/www/clients/client1/web17/web/tools.php on line 161
Deprecated: strripos(): Passing null to parameter #2 ($needle) of type string is deprecated in /var/www/clients/client1/web17/web/tools.php on line 161

Warning: Undefined variable $ub in /var/www/clients/client1/web17/web/tools.php on line 149
Warning: Undefined variable $ub in /var/www/clients/client1/web17/web/tools.php on line 161
Deprecated: strripos(): Passing null to parameter #2 ($needle) of type string is deprecated in /var/www/clients/client1/web17/web/tools.php on line 161

Warning: Undefined variable $ub in /var/www/clients/client1/web17/web/tools.php on line 149
Warning: Undefined variable $ub in /var/www/clients/client1/web17/web/tools.php on line 161
Deprecated: strripos(): Passing null to parameter #2 ($needle) of type string is deprecated in /var/www/clients/client1/web17/web/tools.php on line 161
 |
|
| Ref.: 4585 | | 285 000,00 € TTC |
|
| | | | |
| | | | |
|
| |