|
| | |
|
| | |
|
| AUXERRE - PROCHE CENTRE VILLE |
Warning: Undefined variable $ub in /var/www/clients/client1/web17/web/tools.php on line 149
Warning: Undefined variable $ub in /var/www/clients/client1/web17/web/tools.php on line 161
Deprecated: strripos(): Passing null to parameter #2 ($needle) of type string is deprecated in /var/www/clients/client1/web17/web/tools.php on line 161
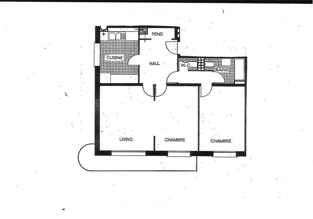
 | Appartement de 3 pièces principales au 2ème étage avec ascenseur dans bonne Résidence avec Cave & Garage
65,23 m² habitables (loi carrez) ;
Entrée (placard), cuisine aménagée, séjour en parquet de chêne donnant sur balcon, 2 chambres en parquet de chêne (dont 1 donnant sur balcon), salle d'eau, w.c.
Chauffage collectif Gaz.
Cave & Garage en sous-sol.
Séjour donnant sur balcon, jolie vue dégagée. Lumineux. Prévoir travaux. A VISITER.
Honoraires d'agence inclus charge Vendeur.
Nombre de lots : 125 (dont 45 usage habitations & bureaux) sur 1 Bâtiment.
Charges de copropriété : 259,60 Euros/mois environ (chauffage compris & eau
Charges annuelles :3.115 Euros.
Pas de procédure en cours connue à ce jour.
Les informations sur les risques auxquels ce bien est exposé sont disponibles sur le site Géorisques : www. georisques. gouv. fr
|
|
|
Warning: Undefined variable $ub in /var/www/clients/client1/web17/web/tools.php on line 149
Warning: Undefined variable $ub in /var/www/clients/client1/web17/web/tools.php on line 161
Deprecated: strripos(): Passing null to parameter #2 ($needle) of type string is deprecated in /var/www/clients/client1/web17/web/tools.php on line 161

Warning: Undefined variable $ub in /var/www/clients/client1/web17/web/tools.php on line 149
Warning: Undefined variable $ub in /var/www/clients/client1/web17/web/tools.php on line 161
Deprecated: strripos(): Passing null to parameter #2 ($needle) of type string is deprecated in /var/www/clients/client1/web17/web/tools.php on line 161

Warning: Undefined variable $ub in /var/www/clients/client1/web17/web/tools.php on line 149
Warning: Undefined variable $ub in /var/www/clients/client1/web17/web/tools.php on line 161
Deprecated: strripos(): Passing null to parameter #2 ($needle) of type string is deprecated in /var/www/clients/client1/web17/web/tools.php on line 161

Warning: Undefined variable $ub in /var/www/clients/client1/web17/web/tools.php on line 149
Warning: Undefined variable $ub in /var/www/clients/client1/web17/web/tools.php on line 161
Deprecated: strripos(): Passing null to parameter #2 ($needle) of type string is deprecated in /var/www/clients/client1/web17/web/tools.php on line 161

Warning: Undefined variable $ub in /var/www/clients/client1/web17/web/tools.php on line 149
Warning: Undefined variable $ub in /var/www/clients/client1/web17/web/tools.php on line 161
Deprecated: strripos(): Passing null to parameter #2 ($needle) of type string is deprecated in /var/www/clients/client1/web17/web/tools.php on line 161

Warning: Undefined variable $ub in /var/www/clients/client1/web17/web/tools.php on line 149
Warning: Undefined variable $ub in /var/www/clients/client1/web17/web/tools.php on line 161
Deprecated: strripos(): Passing null to parameter #2 ($needle) of type string is deprecated in /var/www/clients/client1/web17/web/tools.php on line 161

Warning: Undefined variable $ub in /var/www/clients/client1/web17/web/tools.php on line 149
Warning: Undefined variable $ub in /var/www/clients/client1/web17/web/tools.php on line 161
Deprecated: strripos(): Passing null to parameter #2 ($needle) of type string is deprecated in /var/www/clients/client1/web17/web/tools.php on line 161

Warning: Undefined variable $ub in /var/www/clients/client1/web17/web/tools.php on line 149
Warning: Undefined variable $ub in /var/www/clients/client1/web17/web/tools.php on line 161
Deprecated: strripos(): Passing null to parameter #2 ($needle) of type string is deprecated in /var/www/clients/client1/web17/web/tools.php on line 161

Warning: Undefined variable $ub in /var/www/clients/client1/web17/web/tools.php on line 149
Warning: Undefined variable $ub in /var/www/clients/client1/web17/web/tools.php on line 161
Deprecated: strripos(): Passing null to parameter #2 ($needle) of type string is deprecated in /var/www/clients/client1/web17/web/tools.php on line 161

Warning: Undefined variable $ub in /var/www/clients/client1/web17/web/tools.php on line 149
Warning: Undefined variable $ub in /var/www/clients/client1/web17/web/tools.php on line 161
Deprecated: strripos(): Passing null to parameter #2 ($needle) of type string is deprecated in /var/www/clients/client1/web17/web/tools.php on line 161

|
|
| Ref.: 4682 | | 89 700,00 € TTC |
|
| | | | |
| | |
|
| EXCLUSIF AUXERRE - PROCHE CENTRE VILLE |
Warning: Undefined variable $ub in /var/www/clients/client1/web17/web/tools.php on line 149
Warning: Undefined variable $ub in /var/www/clients/client1/web17/web/tools.php on line 161
Deprecated: strripos(): Passing null to parameter #2 ($needle) of type string is deprecated in /var/www/clients/client1/web17/web/tools.php on line 161
 | Dans cadre verdoyant, bonne exposition, bel Appartement de 4 pièces principales au 1er étage avec ascenseur dans bonne Résidence - 107,38 m² habitables (loi carrez) ;
Entrée (placards), beau séjour (32,64 m²) en parquet donnant sur balcon, cuisine aménagée, dégagement, 3 chambres en parquet dont 1 donnant sur terrasse, belle salle d'eau / lingerie (placards), w.c./lave-mains.
Chauffage individuel électrique.
Balcon & Terrasse.
Beau Garage (1 voiture avec espace rangement) de 23,50 m² & Cave en sous-sol.
Appartement en parfait état, belles prestations. Ensemble très lumineux, nombreux placards. Fenêtres double vitrage. Store banne.
Honoraires d'agence inclus charge Vendeur.
Nombre de lots : 92 (dont 24 usage habitations & bureaux) sur 1 Bâtiment.
Charges de copropriété : 160 Euros/mois environ.
Charges annuelles : 1.920 Euros.
Pas de procédure en cours connue à ce jour.
Les informations sur les risques auxquels ce bien est exposé sont disponibles sur le site Géorisques : www. georisques. gouv. fr |
|
|
Warning: Undefined variable $ub in /var/www/clients/client1/web17/web/tools.php on line 149
Warning: Undefined variable $ub in /var/www/clients/client1/web17/web/tools.php on line 161
Deprecated: strripos(): Passing null to parameter #2 ($needle) of type string is deprecated in /var/www/clients/client1/web17/web/tools.php on line 161

Warning: Undefined variable $ub in /var/www/clients/client1/web17/web/tools.php on line 149
Warning: Undefined variable $ub in /var/www/clients/client1/web17/web/tools.php on line 161
Deprecated: strripos(): Passing null to parameter #2 ($needle) of type string is deprecated in /var/www/clients/client1/web17/web/tools.php on line 161

Warning: Undefined variable $ub in /var/www/clients/client1/web17/web/tools.php on line 149
Warning: Undefined variable $ub in /var/www/clients/client1/web17/web/tools.php on line 161
Deprecated: strripos(): Passing null to parameter #2 ($needle) of type string is deprecated in /var/www/clients/client1/web17/web/tools.php on line 161

Warning: Undefined variable $ub in /var/www/clients/client1/web17/web/tools.php on line 149
Warning: Undefined variable $ub in /var/www/clients/client1/web17/web/tools.php on line 161
Deprecated: strripos(): Passing null to parameter #2 ($needle) of type string is deprecated in /var/www/clients/client1/web17/web/tools.php on line 161

Warning: Undefined variable $ub in /var/www/clients/client1/web17/web/tools.php on line 149
Warning: Undefined variable $ub in /var/www/clients/client1/web17/web/tools.php on line 161
Deprecated: strripos(): Passing null to parameter #2 ($needle) of type string is deprecated in /var/www/clients/client1/web17/web/tools.php on line 161

Warning: Undefined variable $ub in /var/www/clients/client1/web17/web/tools.php on line 149
Warning: Undefined variable $ub in /var/www/clients/client1/web17/web/tools.php on line 161
Deprecated: strripos(): Passing null to parameter #2 ($needle) of type string is deprecated in /var/www/clients/client1/web17/web/tools.php on line 161

Warning: Undefined variable $ub in /var/www/clients/client1/web17/web/tools.php on line 149
Warning: Undefined variable $ub in /var/www/clients/client1/web17/web/tools.php on line 161
Deprecated: strripos(): Passing null to parameter #2 ($needle) of type string is deprecated in /var/www/clients/client1/web17/web/tools.php on line 161

Warning: Undefined variable $ub in /var/www/clients/client1/web17/web/tools.php on line 149
Warning: Undefined variable $ub in /var/www/clients/client1/web17/web/tools.php on line 161
Deprecated: strripos(): Passing null to parameter #2 ($needle) of type string is deprecated in /var/www/clients/client1/web17/web/tools.php on line 161

Warning: Undefined variable $ub in /var/www/clients/client1/web17/web/tools.php on line 149
Warning: Undefined variable $ub in /var/www/clients/client1/web17/web/tools.php on line 161
Deprecated: strripos(): Passing null to parameter #2 ($needle) of type string is deprecated in /var/www/clients/client1/web17/web/tools.php on line 161

Warning: Undefined variable $ub in /var/www/clients/client1/web17/web/tools.php on line 149
Warning: Undefined variable $ub in /var/www/clients/client1/web17/web/tools.php on line 161
Deprecated: strripos(): Passing null to parameter #2 ($needle) of type string is deprecated in /var/www/clients/client1/web17/web/tools.php on line 161

Warning: Undefined variable $ub in /var/www/clients/client1/web17/web/tools.php on line 149
Warning: Undefined variable $ub in /var/www/clients/client1/web17/web/tools.php on line 161
Deprecated: strripos(): Passing null to parameter #2 ($needle) of type string is deprecated in /var/www/clients/client1/web17/web/tools.php on line 161

Warning: Undefined variable $ub in /var/www/clients/client1/web17/web/tools.php on line 149
Warning: Undefined variable $ub in /var/www/clients/client1/web17/web/tools.php on line 161
Deprecated: strripos(): Passing null to parameter #2 ($needle) of type string is deprecated in /var/www/clients/client1/web17/web/tools.php on line 161

Warning: Undefined variable $ub in /var/www/clients/client1/web17/web/tools.php on line 149
Warning: Undefined variable $ub in /var/www/clients/client1/web17/web/tools.php on line 161
Deprecated: strripos(): Passing null to parameter #2 ($needle) of type string is deprecated in /var/www/clients/client1/web17/web/tools.php on line 161

Warning: Undefined variable $ub in /var/www/clients/client1/web17/web/tools.php on line 149
Warning: Undefined variable $ub in /var/www/clients/client1/web17/web/tools.php on line 161
Deprecated: strripos(): Passing null to parameter #2 ($needle) of type string is deprecated in /var/www/clients/client1/web17/web/tools.php on line 161

Warning: Undefined variable $ub in /var/www/clients/client1/web17/web/tools.php on line 149
Warning: Undefined variable $ub in /var/www/clients/client1/web17/web/tools.php on line 161
Deprecated: strripos(): Passing null to parameter #2 ($needle) of type string is deprecated in /var/www/clients/client1/web17/web/tools.php on line 161
 |
|
| Ref.: 4680 | | 292 000,00 € TTC |
|
| | | | |
| | |
|
| EXCLUSIF AUXERRE - CENTRE-VILLE |
Warning: Undefined variable $ub in /var/www/clients/client1/web17/web/tools.php on line 149
Warning: Undefined variable $ub in /var/www/clients/client1/web17/web/tools.php on line 161
Deprecated: strripos(): Passing null to parameter #2 ($needle) of type string is deprecated in /var/www/clients/client1/web17/web/tools.php on line 161
 | Proche tous commerces, Magnifique appartement de type Haussmannien dans un hôtel classé monument historique, entièrement restauré, de 5 pièces principales, situé en rez-de-chaussée - 102,28 m² habitables (loi carrez) ;
Entrée avec placard, w.c., bureau, dégagement, beau séjour en parquet de 34,38 m² avec moulures et rosace inscrite au patrimoine, cuisine aménagée donnant sur grande terrasse de 51 m², 2 belles chambres, salle d'eau, salle de bains/w.c.
Chauffage collectif Gaz de ville avec répartiteur.
Grande terrasse privative.
Parking privé dans cour fermée.
Cave.
Ensemble de charme, lumineux.
Ce bien est proposé par un collaborateur - agent commercial.
Honoraires d'agence inclus charge vendeur.
Nombre de lots : 50 (dont 18 usage habitations & bureaux) sur 3 bâtiments.
Charge de copropriété : 342 Euros environ / mois (chauffage compris).
Charges annuelles : 4.104 Euros.
Pas de procédure connue à ce jour.
Les informations sur les risques auxquels ce bien est exposé, sont disponibles sur le site Géorisques : www.georisques.gouv.fr
|
|
|
Warning: Undefined variable $ub in /var/www/clients/client1/web17/web/tools.php on line 149
Warning: Undefined variable $ub in /var/www/clients/client1/web17/web/tools.php on line 161
Deprecated: strripos(): Passing null to parameter #2 ($needle) of type string is deprecated in /var/www/clients/client1/web17/web/tools.php on line 161

Warning: Undefined variable $ub in /var/www/clients/client1/web17/web/tools.php on line 149
Warning: Undefined variable $ub in /var/www/clients/client1/web17/web/tools.php on line 161
Deprecated: strripos(): Passing null to parameter #2 ($needle) of type string is deprecated in /var/www/clients/client1/web17/web/tools.php on line 161

Warning: Undefined variable $ub in /var/www/clients/client1/web17/web/tools.php on line 149
Warning: Undefined variable $ub in /var/www/clients/client1/web17/web/tools.php on line 161
Deprecated: strripos(): Passing null to parameter #2 ($needle) of type string is deprecated in /var/www/clients/client1/web17/web/tools.php on line 161

Warning: Undefined variable $ub in /var/www/clients/client1/web17/web/tools.php on line 149
Warning: Undefined variable $ub in /var/www/clients/client1/web17/web/tools.php on line 161
Deprecated: strripos(): Passing null to parameter #2 ($needle) of type string is deprecated in /var/www/clients/client1/web17/web/tools.php on line 161

Warning: Undefined variable $ub in /var/www/clients/client1/web17/web/tools.php on line 149
Warning: Undefined variable $ub in /var/www/clients/client1/web17/web/tools.php on line 161
Deprecated: strripos(): Passing null to parameter #2 ($needle) of type string is deprecated in /var/www/clients/client1/web17/web/tools.php on line 161

Warning: Undefined variable $ub in /var/www/clients/client1/web17/web/tools.php on line 149
Warning: Undefined variable $ub in /var/www/clients/client1/web17/web/tools.php on line 161
Deprecated: strripos(): Passing null to parameter #2 ($needle) of type string is deprecated in /var/www/clients/client1/web17/web/tools.php on line 161

Warning: Undefined variable $ub in /var/www/clients/client1/web17/web/tools.php on line 149
Warning: Undefined variable $ub in /var/www/clients/client1/web17/web/tools.php on line 161
Deprecated: strripos(): Passing null to parameter #2 ($needle) of type string is deprecated in /var/www/clients/client1/web17/web/tools.php on line 161

Warning: Undefined variable $ub in /var/www/clients/client1/web17/web/tools.php on line 149
Warning: Undefined variable $ub in /var/www/clients/client1/web17/web/tools.php on line 161
Deprecated: strripos(): Passing null to parameter #2 ($needle) of type string is deprecated in /var/www/clients/client1/web17/web/tools.php on line 161

Warning: Undefined variable $ub in /var/www/clients/client1/web17/web/tools.php on line 149
Warning: Undefined variable $ub in /var/www/clients/client1/web17/web/tools.php on line 161
Deprecated: strripos(): Passing null to parameter #2 ($needle) of type string is deprecated in /var/www/clients/client1/web17/web/tools.php on line 161

Warning: Undefined variable $ub in /var/www/clients/client1/web17/web/tools.php on line 149
Warning: Undefined variable $ub in /var/www/clients/client1/web17/web/tools.php on line 161
Deprecated: strripos(): Passing null to parameter #2 ($needle) of type string is deprecated in /var/www/clients/client1/web17/web/tools.php on line 161

Warning: Undefined variable $ub in /var/www/clients/client1/web17/web/tools.php on line 149
Warning: Undefined variable $ub in /var/www/clients/client1/web17/web/tools.php on line 161
Deprecated: strripos(): Passing null to parameter #2 ($needle) of type string is deprecated in /var/www/clients/client1/web17/web/tools.php on line 161

Warning: Undefined variable $ub in /var/www/clients/client1/web17/web/tools.php on line 149
Warning: Undefined variable $ub in /var/www/clients/client1/web17/web/tools.php on line 161
Deprecated: strripos(): Passing null to parameter #2 ($needle) of type string is deprecated in /var/www/clients/client1/web17/web/tools.php on line 161

Warning: Undefined variable $ub in /var/www/clients/client1/web17/web/tools.php on line 149
Warning: Undefined variable $ub in /var/www/clients/client1/web17/web/tools.php on line 161
Deprecated: strripos(): Passing null to parameter #2 ($needle) of type string is deprecated in /var/www/clients/client1/web17/web/tools.php on line 161

Warning: Undefined variable $ub in /var/www/clients/client1/web17/web/tools.php on line 149
Warning: Undefined variable $ub in /var/www/clients/client1/web17/web/tools.php on line 161
Deprecated: strripos(): Passing null to parameter #2 ($needle) of type string is deprecated in /var/www/clients/client1/web17/web/tools.php on line 161

Warning: Undefined variable $ub in /var/www/clients/client1/web17/web/tools.php on line 149
Warning: Undefined variable $ub in /var/www/clients/client1/web17/web/tools.php on line 161
Deprecated: strripos(): Passing null to parameter #2 ($needle) of type string is deprecated in /var/www/clients/client1/web17/web/tools.php on line 161
 |
|
| Ref.: 4674 | | 239 000,00 € TTC |
|
| | | | |
| | |
|
| EXCLUSIF AUXERRE - CENTRE VILLE |
Warning: Undefined variable $ub in /var/www/clients/client1/web17/web/tools.php on line 149
Warning: Undefined variable $ub in /var/www/clients/client1/web17/web/tools.php on line 161
Deprecated: strripos(): Passing null to parameter #2 ($needle) of type string is deprecated in /var/www/clients/client1/web17/web/tools.php on line 161
 | Quartier historique, proche quai de la Marine, Local professionnel (possibilité Appartement) situé en Rez-de-chaussée dans petite copropriété - 127 m² environ :
2 grandes pièces, réserves et sanitaires/w.c. ;
Sous-sol : 2 grande pièces/caves voûtées.
Chauffage individuel Gaz.
Local professionnel de charme dans immeuble à pans de bois. Beaux volumes. A VISITER.
Honoraires d'agence inclus charge vendeur.
Faibles charges 385 Euros/an (uniquement assurance de l'immeuble).
Pas de procédure en cours connue à ce jour.
Les informations sur les risques auxquels ce bien est exposé sont disponibles sur le site Géorisques : www. georisques. gouv. fr |
|
|
Warning: Undefined variable $ub in /var/www/clients/client1/web17/web/tools.php on line 149
Warning: Undefined variable $ub in /var/www/clients/client1/web17/web/tools.php on line 161
Deprecated: strripos(): Passing null to parameter #2 ($needle) of type string is deprecated in /var/www/clients/client1/web17/web/tools.php on line 161

Warning: Undefined variable $ub in /var/www/clients/client1/web17/web/tools.php on line 149
Warning: Undefined variable $ub in /var/www/clients/client1/web17/web/tools.php on line 161
Deprecated: strripos(): Passing null to parameter #2 ($needle) of type string is deprecated in /var/www/clients/client1/web17/web/tools.php on line 161

Warning: Undefined variable $ub in /var/www/clients/client1/web17/web/tools.php on line 149
Warning: Undefined variable $ub in /var/www/clients/client1/web17/web/tools.php on line 161
Deprecated: strripos(): Passing null to parameter #2 ($needle) of type string is deprecated in /var/www/clients/client1/web17/web/tools.php on line 161

Warning: Undefined variable $ub in /var/www/clients/client1/web17/web/tools.php on line 149
Warning: Undefined variable $ub in /var/www/clients/client1/web17/web/tools.php on line 161
Deprecated: strripos(): Passing null to parameter #2 ($needle) of type string is deprecated in /var/www/clients/client1/web17/web/tools.php on line 161

Warning: Undefined variable $ub in /var/www/clients/client1/web17/web/tools.php on line 149
Warning: Undefined variable $ub in /var/www/clients/client1/web17/web/tools.php on line 161
Deprecated: strripos(): Passing null to parameter #2 ($needle) of type string is deprecated in /var/www/clients/client1/web17/web/tools.php on line 161

Warning: Undefined variable $ub in /var/www/clients/client1/web17/web/tools.php on line 149
Warning: Undefined variable $ub in /var/www/clients/client1/web17/web/tools.php on line 161
Deprecated: strripos(): Passing null to parameter #2 ($needle) of type string is deprecated in /var/www/clients/client1/web17/web/tools.php on line 161

Warning: Undefined variable $ub in /var/www/clients/client1/web17/web/tools.php on line 149
Warning: Undefined variable $ub in /var/www/clients/client1/web17/web/tools.php on line 161
Deprecated: strripos(): Passing null to parameter #2 ($needle) of type string is deprecated in /var/www/clients/client1/web17/web/tools.php on line 161

Warning: Undefined variable $ub in /var/www/clients/client1/web17/web/tools.php on line 149
Warning: Undefined variable $ub in /var/www/clients/client1/web17/web/tools.php on line 161
Deprecated: strripos(): Passing null to parameter #2 ($needle) of type string is deprecated in /var/www/clients/client1/web17/web/tools.php on line 161

Warning: Undefined variable $ub in /var/www/clients/client1/web17/web/tools.php on line 149
Warning: Undefined variable $ub in /var/www/clients/client1/web17/web/tools.php on line 161
Deprecated: strripos(): Passing null to parameter #2 ($needle) of type string is deprecated in /var/www/clients/client1/web17/web/tools.php on line 161

Warning: Undefined variable $ub in /var/www/clients/client1/web17/web/tools.php on line 149
Warning: Undefined variable $ub in /var/www/clients/client1/web17/web/tools.php on line 161
Deprecated: strripos(): Passing null to parameter #2 ($needle) of type string is deprecated in /var/www/clients/client1/web17/web/tools.php on line 161

Warning: Undefined variable $ub in /var/www/clients/client1/web17/web/tools.php on line 149
Warning: Undefined variable $ub in /var/www/clients/client1/web17/web/tools.php on line 161
Deprecated: strripos(): Passing null to parameter #2 ($needle) of type string is deprecated in /var/www/clients/client1/web17/web/tools.php on line 161
 |
|
| Ref.: 4671 | | 130 000,00 € TTC |
|
| | | | |
| | |
|
| AUXERRE - QUARTIER ARQUEBUSE - V E N D U - |
Warning: Undefined variable $ub in /var/www/clients/client1/web17/web/tools.php on line 149
Warning: Undefined variable $ub in /var/www/clients/client1/web17/web/tools.php on line 161
Deprecated: strripos(): Passing null to parameter #2 ($needle) of type string is deprecated in /var/www/clients/client1/web17/web/tools.php on line 161
 | Dans Résidence de standing, grand appartement au 4ème et dernier étage (ascenseur) avec vue panoramique sur la ville - 102,62 m² habitables (loi carrez) - Entrée, w.c., cuisine aménagée, beau séjour en parquet (51,25 m²) donnant sur balcon & terrasse, dégagement (placards), 1 belle chambre (19,31 m²) placard et donnant sur terrasse, salle de bains (placard).
Balcon & Terrasse (ensemble de 26,42 m²).
Cave & Garage en sous-sol (desservis par ascenseur).
Chauffage gaz.
Appartement lumineux, nombreux placards, volets roulants électriques. Appartement avec grande terrasse. Jolie vue dégagée. Normes handicapé. Emplacement de qualité, proche tous commerces. A voir.
Honoraires d'agence inclus charge Acquéreur pour 10.000 Euros soit un prix net vendeur de 220.000 Euros.
Nombre de lots : 108 (dont 37 usage habitations & bureaux) sur 2 Bâtiments.
Charges de copropriété : 450 Euros/mois environ (chauffage compris.
Charges annuelles : 5.400 Euros.
Pas de procédure en cours connue à ce jour.
Les informations sur les risques auxquels ce bien est exposé sont disponibles sur le site Géorisques : www. georisques. gouv. fr |
|
|
Warning: Undefined variable $ub in /var/www/clients/client1/web17/web/tools.php on line 149
Warning: Undefined variable $ub in /var/www/clients/client1/web17/web/tools.php on line 161
Deprecated: strripos(): Passing null to parameter #2 ($needle) of type string is deprecated in /var/www/clients/client1/web17/web/tools.php on line 161

Warning: Undefined variable $ub in /var/www/clients/client1/web17/web/tools.php on line 149
Warning: Undefined variable $ub in /var/www/clients/client1/web17/web/tools.php on line 161
Deprecated: strripos(): Passing null to parameter #2 ($needle) of type string is deprecated in /var/www/clients/client1/web17/web/tools.php on line 161

Warning: Undefined variable $ub in /var/www/clients/client1/web17/web/tools.php on line 149
Warning: Undefined variable $ub in /var/www/clients/client1/web17/web/tools.php on line 161
Deprecated: strripos(): Passing null to parameter #2 ($needle) of type string is deprecated in /var/www/clients/client1/web17/web/tools.php on line 161

Warning: Undefined variable $ub in /var/www/clients/client1/web17/web/tools.php on line 149
Warning: Undefined variable $ub in /var/www/clients/client1/web17/web/tools.php on line 161
Deprecated: strripos(): Passing null to parameter #2 ($needle) of type string is deprecated in /var/www/clients/client1/web17/web/tools.php on line 161

Warning: Undefined variable $ub in /var/www/clients/client1/web17/web/tools.php on line 149
Warning: Undefined variable $ub in /var/www/clients/client1/web17/web/tools.php on line 161
Deprecated: strripos(): Passing null to parameter #2 ($needle) of type string is deprecated in /var/www/clients/client1/web17/web/tools.php on line 161

Warning: Undefined variable $ub in /var/www/clients/client1/web17/web/tools.php on line 149
Warning: Undefined variable $ub in /var/www/clients/client1/web17/web/tools.php on line 161
Deprecated: strripos(): Passing null to parameter #2 ($needle) of type string is deprecated in /var/www/clients/client1/web17/web/tools.php on line 161

Warning: Undefined variable $ub in /var/www/clients/client1/web17/web/tools.php on line 149
Warning: Undefined variable $ub in /var/www/clients/client1/web17/web/tools.php on line 161
Deprecated: strripos(): Passing null to parameter #2 ($needle) of type string is deprecated in /var/www/clients/client1/web17/web/tools.php on line 161

Warning: Undefined variable $ub in /var/www/clients/client1/web17/web/tools.php on line 149
Warning: Undefined variable $ub in /var/www/clients/client1/web17/web/tools.php on line 161
Deprecated: strripos(): Passing null to parameter #2 ($needle) of type string is deprecated in /var/www/clients/client1/web17/web/tools.php on line 161

Warning: Undefined variable $ub in /var/www/clients/client1/web17/web/tools.php on line 149
Warning: Undefined variable $ub in /var/www/clients/client1/web17/web/tools.php on line 161
Deprecated: strripos(): Passing null to parameter #2 ($needle) of type string is deprecated in /var/www/clients/client1/web17/web/tools.php on line 161

Warning: Undefined variable $ub in /var/www/clients/client1/web17/web/tools.php on line 149
Warning: Undefined variable $ub in /var/www/clients/client1/web17/web/tools.php on line 161
Deprecated: strripos(): Passing null to parameter #2 ($needle) of type string is deprecated in /var/www/clients/client1/web17/web/tools.php on line 161

Warning: Undefined variable $ub in /var/www/clients/client1/web17/web/tools.php on line 149
Warning: Undefined variable $ub in /var/www/clients/client1/web17/web/tools.php on line 161
Deprecated: strripos(): Passing null to parameter #2 ($needle) of type string is deprecated in /var/www/clients/client1/web17/web/tools.php on line 161

Warning: Undefined variable $ub in /var/www/clients/client1/web17/web/tools.php on line 149
Warning: Undefined variable $ub in /var/www/clients/client1/web17/web/tools.php on line 161
Deprecated: strripos(): Passing null to parameter #2 ($needle) of type string is deprecated in /var/www/clients/client1/web17/web/tools.php on line 161

Warning: Undefined variable $ub in /var/www/clients/client1/web17/web/tools.php on line 149
Warning: Undefined variable $ub in /var/www/clients/client1/web17/web/tools.php on line 161
Deprecated: strripos(): Passing null to parameter #2 ($needle) of type string is deprecated in /var/www/clients/client1/web17/web/tools.php on line 161

Warning: Undefined variable $ub in /var/www/clients/client1/web17/web/tools.php on line 149
Warning: Undefined variable $ub in /var/www/clients/client1/web17/web/tools.php on line 161
Deprecated: strripos(): Passing null to parameter #2 ($needle) of type string is deprecated in /var/www/clients/client1/web17/web/tools.php on line 161

Warning: Undefined variable $ub in /var/www/clients/client1/web17/web/tools.php on line 149
Warning: Undefined variable $ub in /var/www/clients/client1/web17/web/tools.php on line 161
Deprecated: strripos(): Passing null to parameter #2 ($needle) of type string is deprecated in /var/www/clients/client1/web17/web/tools.php on line 161
 |
|
| Ref.: 4664 | | 230 000,00 € TTC |
|
| | | | |
| | |
|
| AUXERRE - RÉSIDENTIEL, PROCHE CENTRE VILLE |
Warning: Undefined variable $ub in /var/www/clients/client1/web17/web/tools.php on line 149
Warning: Undefined variable $ub in /var/www/clients/client1/web17/web/tools.php on line 161
Deprecated: strripos(): Passing null to parameter #2 ($needle) of type string is deprecated in /var/www/clients/client1/web17/web/tools.php on line 161
 | Dans bonne Résidence sécurisée, Appartement de 2 pièces principales au 1er étage avec ascenseur, 46,79 m² habitables (loi carrez).
Entrée (placard), cuisine, séjour donnant sur balcon, 1 chambre (placard), petit dégagement, salle d'eau, w.c.
Chauffage individuel électrique.
Emplacement de parking privé à l'extérieur.
Ensemble en bon état général, sol en carrelage. Fenêtres double vitrage.
Idéal investisseur.
Honoraires d'agence inclus charge vendeur.
Ce bien est proposé par un collaborateur Agent commercial.
Nombre de lots : 160 (dont 63 usage habitations & bureaux) sur 2 Bâtiments.
Charges de copropriété : 95 Euros/mois environ.
Charges annuelles : 1.140 Euros.
Pas de procédure en cours connue à ce jour.
Les informations sur les risques auxquels ce bien est exposé sont disponibles sur le site Géorisques : www. georisques. gouv. fr |
|
|
Warning: Undefined variable $ub in /var/www/clients/client1/web17/web/tools.php on line 149
Warning: Undefined variable $ub in /var/www/clients/client1/web17/web/tools.php on line 161
Deprecated: strripos(): Passing null to parameter #2 ($needle) of type string is deprecated in /var/www/clients/client1/web17/web/tools.php on line 161

Warning: Undefined variable $ub in /var/www/clients/client1/web17/web/tools.php on line 149
Warning: Undefined variable $ub in /var/www/clients/client1/web17/web/tools.php on line 161
Deprecated: strripos(): Passing null to parameter #2 ($needle) of type string is deprecated in /var/www/clients/client1/web17/web/tools.php on line 161

Warning: Undefined variable $ub in /var/www/clients/client1/web17/web/tools.php on line 149
Warning: Undefined variable $ub in /var/www/clients/client1/web17/web/tools.php on line 161
Deprecated: strripos(): Passing null to parameter #2 ($needle) of type string is deprecated in /var/www/clients/client1/web17/web/tools.php on line 161

Warning: Undefined variable $ub in /var/www/clients/client1/web17/web/tools.php on line 149
Warning: Undefined variable $ub in /var/www/clients/client1/web17/web/tools.php on line 161
Deprecated: strripos(): Passing null to parameter #2 ($needle) of type string is deprecated in /var/www/clients/client1/web17/web/tools.php on line 161

Warning: Undefined variable $ub in /var/www/clients/client1/web17/web/tools.php on line 149
Warning: Undefined variable $ub in /var/www/clients/client1/web17/web/tools.php on line 161
Deprecated: strripos(): Passing null to parameter #2 ($needle) of type string is deprecated in /var/www/clients/client1/web17/web/tools.php on line 161

Warning: Undefined variable $ub in /var/www/clients/client1/web17/web/tools.php on line 149
Warning: Undefined variable $ub in /var/www/clients/client1/web17/web/tools.php on line 161
Deprecated: strripos(): Passing null to parameter #2 ($needle) of type string is deprecated in /var/www/clients/client1/web17/web/tools.php on line 161

Warning: Undefined variable $ub in /var/www/clients/client1/web17/web/tools.php on line 149
Warning: Undefined variable $ub in /var/www/clients/client1/web17/web/tools.php on line 161
Deprecated: strripos(): Passing null to parameter #2 ($needle) of type string is deprecated in /var/www/clients/client1/web17/web/tools.php on line 161

Warning: Undefined variable $ub in /var/www/clients/client1/web17/web/tools.php on line 149
Warning: Undefined variable $ub in /var/www/clients/client1/web17/web/tools.php on line 161
Deprecated: strripos(): Passing null to parameter #2 ($needle) of type string is deprecated in /var/www/clients/client1/web17/web/tools.php on line 161
 |
|
| Ref.: 4659 | | 96 500,00 € TTC |
|
| | | | |
| | |
|
| EXCLUSIF AUXERRE - PROCHE CENTRE VILLE |
Warning: Undefined variable $ub in /var/www/clients/client1/web17/web/tools.php on line 149
Warning: Undefined variable $ub in /var/www/clients/client1/web17/web/tools.php on line 161
Deprecated: strripos(): Passing null to parameter #2 ($needle) of type string is deprecated in /var/www/clients/client1/web17/web/tools.php on line 161
 | Quartier résidentiel, dans parc arboré, tous commerces à proximité, Appartement de 2 pièces principales situé au Rez-de-chaussée avec jardinet dans bonne Résidence ; 47,59 m² habitables (loi carrez) ;
Entrée avec dégagement (grand placard), cuisine donnant sur jardinet, séjour donnant sur jardinet, 1 chambre, salle de bains, w.c.
Chauffage collectif gaz de ville.
Cave & parking privatif extérieur.
Résidence sécurisée, appartement lumineux avec petit jardinet. Parking privé. Idéal investisseur.
A VISITER.
Honoraires d'agence inclus charge acquéreur pour 8.000 Euros.
Nombre de lots : 175 (dont 58 usage habitations & bureaux) sur 4 Bâtiments.
Charges de copropriété : 170 Euros/mois environ (chauffage compris).
Charges annuelles : 2.040 Euros.
Pas de procédure en cours connue à ce jour.
Les informations sur les risques auxquels ce bien est exposé sont disponibles sur le site Géorisques : www. géorisques. gouv. fr |
|
|
Warning: Undefined variable $ub in /var/www/clients/client1/web17/web/tools.php on line 149
Warning: Undefined variable $ub in /var/www/clients/client1/web17/web/tools.php on line 161
Deprecated: strripos(): Passing null to parameter #2 ($needle) of type string is deprecated in /var/www/clients/client1/web17/web/tools.php on line 161

Warning: Undefined variable $ub in /var/www/clients/client1/web17/web/tools.php on line 149
Warning: Undefined variable $ub in /var/www/clients/client1/web17/web/tools.php on line 161
Deprecated: strripos(): Passing null to parameter #2 ($needle) of type string is deprecated in /var/www/clients/client1/web17/web/tools.php on line 161

Warning: Undefined variable $ub in /var/www/clients/client1/web17/web/tools.php on line 149
Warning: Undefined variable $ub in /var/www/clients/client1/web17/web/tools.php on line 161
Deprecated: strripos(): Passing null to parameter #2 ($needle) of type string is deprecated in /var/www/clients/client1/web17/web/tools.php on line 161

Warning: Undefined variable $ub in /var/www/clients/client1/web17/web/tools.php on line 149
Warning: Undefined variable $ub in /var/www/clients/client1/web17/web/tools.php on line 161
Deprecated: strripos(): Passing null to parameter #2 ($needle) of type string is deprecated in /var/www/clients/client1/web17/web/tools.php on line 161

Warning: Undefined variable $ub in /var/www/clients/client1/web17/web/tools.php on line 149
Warning: Undefined variable $ub in /var/www/clients/client1/web17/web/tools.php on line 161
Deprecated: strripos(): Passing null to parameter #2 ($needle) of type string is deprecated in /var/www/clients/client1/web17/web/tools.php on line 161

Warning: Undefined variable $ub in /var/www/clients/client1/web17/web/tools.php on line 149
Warning: Undefined variable $ub in /var/www/clients/client1/web17/web/tools.php on line 161
Deprecated: strripos(): Passing null to parameter #2 ($needle) of type string is deprecated in /var/www/clients/client1/web17/web/tools.php on line 161

Warning: Undefined variable $ub in /var/www/clients/client1/web17/web/tools.php on line 149
Warning: Undefined variable $ub in /var/www/clients/client1/web17/web/tools.php on line 161
Deprecated: strripos(): Passing null to parameter #2 ($needle) of type string is deprecated in /var/www/clients/client1/web17/web/tools.php on line 161

Warning: Undefined variable $ub in /var/www/clients/client1/web17/web/tools.php on line 149
Warning: Undefined variable $ub in /var/www/clients/client1/web17/web/tools.php on line 161
Deprecated: strripos(): Passing null to parameter #2 ($needle) of type string is deprecated in /var/www/clients/client1/web17/web/tools.php on line 161

Warning: Undefined variable $ub in /var/www/clients/client1/web17/web/tools.php on line 149
Warning: Undefined variable $ub in /var/www/clients/client1/web17/web/tools.php on line 161
Deprecated: strripos(): Passing null to parameter #2 ($needle) of type string is deprecated in /var/www/clients/client1/web17/web/tools.php on line 161
 |
|
| Réf.: 4656 | | 88 000,00 € TTC |
|
| | | | |
| | |
|
| EXCLUSIF AUXERRE - CENTRE VILLE |
Warning: Undefined variable $ub in /var/www/clients/client1/web17/web/tools.php on line 149
Warning: Undefined variable $ub in /var/www/clients/client1/web17/web/tools.php on line 161
Deprecated: strripos(): Passing null to parameter #2 ($needle) of type string is deprecated in /var/www/clients/client1/web17/web/tools.php on line 161
 | Proche Palais de justice et boulevards, LOCAL à USAGE PROFESSIONNEL en rez-de-chaussée d'un immeuble - Superficie loi Carrez : 123,88 m² - Vaste hall d'Entrée (55 m²) avec Garage sur le côté - Bureau d'accueil avec salle d'attente (33,60 m²), beau bureau (36 m²), 1 pièce réserve (15,10 m²), autre pièce (17,55 m²), petit local vmc, dégagements, 2 w.c avec lavabo.
Chauffage électrique.
Beau Garage (31,70 m²) & stationnement possible dans le hall d'entrée.
Beaux volumes, de plain-pied. Accès handicapés.
A VISITER.
Honoraires d'agence inclus charge Vendeur.
Les informations sur les risques auxquels ce bien est exposé sont disponibles sur le site Géorisques : www. georisques. gouv. fr |
|
|
Warning: Undefined variable $ub in /var/www/clients/client1/web17/web/tools.php on line 149
Warning: Undefined variable $ub in /var/www/clients/client1/web17/web/tools.php on line 161
Deprecated: strripos(): Passing null to parameter #2 ($needle) of type string is deprecated in /var/www/clients/client1/web17/web/tools.php on line 161

Warning: Undefined variable $ub in /var/www/clients/client1/web17/web/tools.php on line 149
Warning: Undefined variable $ub in /var/www/clients/client1/web17/web/tools.php on line 161
Deprecated: strripos(): Passing null to parameter #2 ($needle) of type string is deprecated in /var/www/clients/client1/web17/web/tools.php on line 161

Warning: Undefined variable $ub in /var/www/clients/client1/web17/web/tools.php on line 149
Warning: Undefined variable $ub in /var/www/clients/client1/web17/web/tools.php on line 161
Deprecated: strripos(): Passing null to parameter #2 ($needle) of type string is deprecated in /var/www/clients/client1/web17/web/tools.php on line 161

Warning: Undefined variable $ub in /var/www/clients/client1/web17/web/tools.php on line 149
Warning: Undefined variable $ub in /var/www/clients/client1/web17/web/tools.php on line 161
Deprecated: strripos(): Passing null to parameter #2 ($needle) of type string is deprecated in /var/www/clients/client1/web17/web/tools.php on line 161

Warning: Undefined variable $ub in /var/www/clients/client1/web17/web/tools.php on line 149
Warning: Undefined variable $ub in /var/www/clients/client1/web17/web/tools.php on line 161
Deprecated: strripos(): Passing null to parameter #2 ($needle) of type string is deprecated in /var/www/clients/client1/web17/web/tools.php on line 161

Warning: Undefined variable $ub in /var/www/clients/client1/web17/web/tools.php on line 149
Warning: Undefined variable $ub in /var/www/clients/client1/web17/web/tools.php on line 161
Deprecated: strripos(): Passing null to parameter #2 ($needle) of type string is deprecated in /var/www/clients/client1/web17/web/tools.php on line 161

Warning: Undefined variable $ub in /var/www/clients/client1/web17/web/tools.php on line 149
Warning: Undefined variable $ub in /var/www/clients/client1/web17/web/tools.php on line 161
Deprecated: strripos(): Passing null to parameter #2 ($needle) of type string is deprecated in /var/www/clients/client1/web17/web/tools.php on line 161

Warning: Undefined variable $ub in /var/www/clients/client1/web17/web/tools.php on line 149
Warning: Undefined variable $ub in /var/www/clients/client1/web17/web/tools.php on line 161
Deprecated: strripos(): Passing null to parameter #2 ($needle) of type string is deprecated in /var/www/clients/client1/web17/web/tools.php on line 161

Warning: Undefined variable $ub in /var/www/clients/client1/web17/web/tools.php on line 149
Warning: Undefined variable $ub in /var/www/clients/client1/web17/web/tools.php on line 161
Deprecated: strripos(): Passing null to parameter #2 ($needle) of type string is deprecated in /var/www/clients/client1/web17/web/tools.php on line 161

Warning: Undefined variable $ub in /var/www/clients/client1/web17/web/tools.php on line 149
Warning: Undefined variable $ub in /var/www/clients/client1/web17/web/tools.php on line 161
Deprecated: strripos(): Passing null to parameter #2 ($needle) of type string is deprecated in /var/www/clients/client1/web17/web/tools.php on line 161

Warning: Undefined variable $ub in /var/www/clients/client1/web17/web/tools.php on line 149
Warning: Undefined variable $ub in /var/www/clients/client1/web17/web/tools.php on line 161
Deprecated: strripos(): Passing null to parameter #2 ($needle) of type string is deprecated in /var/www/clients/client1/web17/web/tools.php on line 161

Warning: Undefined variable $ub in /var/www/clients/client1/web17/web/tools.php on line 149
Warning: Undefined variable $ub in /var/www/clients/client1/web17/web/tools.php on line 161
Deprecated: strripos(): Passing null to parameter #2 ($needle) of type string is deprecated in /var/www/clients/client1/web17/web/tools.php on line 161
 |
|
| Ref.: 4654 | | 161 500,00 € TTC |
|
| | | | |
| | |
|
| EXCLUSIF AUXERRE - PROCHE CENTRE VILLE |
Warning: Undefined variable $ub in /var/www/clients/client1/web17/web/tools.php on line 149
Warning: Undefined variable $ub in /var/www/clients/client1/web17/web/tools.php on line 161
Deprecated: strripos(): Passing null to parameter #2 ($needle) of type string is deprecated in /var/www/clients/client1/web17/web/tools.php on line 161
 | Résidence bon standing avec jardin intérieur, au 1er étage avec ascenseur, bel Appartement en parfait état de 109,32 m² (loi carrez), Entrée, jolie cuisine aménagée, salle à manger - salon avec accès sur vaste balcon donnant sur 3 côtés, dégagements, 3 chambres en parquet, belle salle d'eau, w.c / lavabo, w.c./lave-mains.
Chauffage collectif Gaz de ville.
Cave en sous-sol (desservi par ascenseur).
Place de parking en sous-sol (possibilité 1 ou 2 parkings supplémentaires).
Agréable Appartement lumineux dans Résidence avec gardien, ascenseur, espaces verts.
A VISITER.
Honoraires d'agence inclus charge vendeur.
Nombre de lots : 257 (dont 87 usage habitations & bureaux) sur 2 Bâtiments.
Charges de copropriété : 640 Euros/mois environ (compris chauffage, eau, gardien, etc...)
Charges annuelles : 7.680 Euros.
Pas de procédure en cours connue à ce jour.
Les informations sur les risques auxquels ce bien est exposé sont disponibles sur le site Géorisques : www. georisques. gouv. fr |
|
|
Warning: Undefined variable $ub in /var/www/clients/client1/web17/web/tools.php on line 149
Warning: Undefined variable $ub in /var/www/clients/client1/web17/web/tools.php on line 161
Deprecated: strripos(): Passing null to parameter #2 ($needle) of type string is deprecated in /var/www/clients/client1/web17/web/tools.php on line 161

Warning: Undefined variable $ub in /var/www/clients/client1/web17/web/tools.php on line 149
Warning: Undefined variable $ub in /var/www/clients/client1/web17/web/tools.php on line 161
Deprecated: strripos(): Passing null to parameter #2 ($needle) of type string is deprecated in /var/www/clients/client1/web17/web/tools.php on line 161

Warning: Undefined variable $ub in /var/www/clients/client1/web17/web/tools.php on line 149
Warning: Undefined variable $ub in /var/www/clients/client1/web17/web/tools.php on line 161
Deprecated: strripos(): Passing null to parameter #2 ($needle) of type string is deprecated in /var/www/clients/client1/web17/web/tools.php on line 161

Warning: Undefined variable $ub in /var/www/clients/client1/web17/web/tools.php on line 149
Warning: Undefined variable $ub in /var/www/clients/client1/web17/web/tools.php on line 161
Deprecated: strripos(): Passing null to parameter #2 ($needle) of type string is deprecated in /var/www/clients/client1/web17/web/tools.php on line 161

Warning: Undefined variable $ub in /var/www/clients/client1/web17/web/tools.php on line 149
Warning: Undefined variable $ub in /var/www/clients/client1/web17/web/tools.php on line 161
Deprecated: strripos(): Passing null to parameter #2 ($needle) of type string is deprecated in /var/www/clients/client1/web17/web/tools.php on line 161

Warning: Undefined variable $ub in /var/www/clients/client1/web17/web/tools.php on line 149
Warning: Undefined variable $ub in /var/www/clients/client1/web17/web/tools.php on line 161
Deprecated: strripos(): Passing null to parameter #2 ($needle) of type string is deprecated in /var/www/clients/client1/web17/web/tools.php on line 161

Warning: Undefined variable $ub in /var/www/clients/client1/web17/web/tools.php on line 149
Warning: Undefined variable $ub in /var/www/clients/client1/web17/web/tools.php on line 161
Deprecated: strripos(): Passing null to parameter #2 ($needle) of type string is deprecated in /var/www/clients/client1/web17/web/tools.php on line 161

Warning: Undefined variable $ub in /var/www/clients/client1/web17/web/tools.php on line 149
Warning: Undefined variable $ub in /var/www/clients/client1/web17/web/tools.php on line 161
Deprecated: strripos(): Passing null to parameter #2 ($needle) of type string is deprecated in /var/www/clients/client1/web17/web/tools.php on line 161

Warning: Undefined variable $ub in /var/www/clients/client1/web17/web/tools.php on line 149
Warning: Undefined variable $ub in /var/www/clients/client1/web17/web/tools.php on line 161
Deprecated: strripos(): Passing null to parameter #2 ($needle) of type string is deprecated in /var/www/clients/client1/web17/web/tools.php on line 161

Warning: Undefined variable $ub in /var/www/clients/client1/web17/web/tools.php on line 149
Warning: Undefined variable $ub in /var/www/clients/client1/web17/web/tools.php on line 161
Deprecated: strripos(): Passing null to parameter #2 ($needle) of type string is deprecated in /var/www/clients/client1/web17/web/tools.php on line 161

Warning: Undefined variable $ub in /var/www/clients/client1/web17/web/tools.php on line 149
Warning: Undefined variable $ub in /var/www/clients/client1/web17/web/tools.php on line 161
Deprecated: strripos(): Passing null to parameter #2 ($needle) of type string is deprecated in /var/www/clients/client1/web17/web/tools.php on line 161

Warning: Undefined variable $ub in /var/www/clients/client1/web17/web/tools.php on line 149
Warning: Undefined variable $ub in /var/www/clients/client1/web17/web/tools.php on line 161
Deprecated: strripos(): Passing null to parameter #2 ($needle) of type string is deprecated in /var/www/clients/client1/web17/web/tools.php on line 161

Warning: Undefined variable $ub in /var/www/clients/client1/web17/web/tools.php on line 149
Warning: Undefined variable $ub in /var/www/clients/client1/web17/web/tools.php on line 161
Deprecated: strripos(): Passing null to parameter #2 ($needle) of type string is deprecated in /var/www/clients/client1/web17/web/tools.php on line 161

Warning: Undefined variable $ub in /var/www/clients/client1/web17/web/tools.php on line 149
Warning: Undefined variable $ub in /var/www/clients/client1/web17/web/tools.php on line 161
Deprecated: strripos(): Passing null to parameter #2 ($needle) of type string is deprecated in /var/www/clients/client1/web17/web/tools.php on line 161

Warning: Undefined variable $ub in /var/www/clients/client1/web17/web/tools.php on line 149
Warning: Undefined variable $ub in /var/www/clients/client1/web17/web/tools.php on line 161
Deprecated: strripos(): Passing null to parameter #2 ($needle) of type string is deprecated in /var/www/clients/client1/web17/web/tools.php on line 161

Warning: Undefined variable $ub in /var/www/clients/client1/web17/web/tools.php on line 149
Warning: Undefined variable $ub in /var/www/clients/client1/web17/web/tools.php on line 161
Deprecated: strripos(): Passing null to parameter #2 ($needle) of type string is deprecated in /var/www/clients/client1/web17/web/tools.php on line 161

Warning: Undefined variable $ub in /var/www/clients/client1/web17/web/tools.php on line 149
Warning: Undefined variable $ub in /var/www/clients/client1/web17/web/tools.php on line 161
Deprecated: strripos(): Passing null to parameter #2 ($needle) of type string is deprecated in /var/www/clients/client1/web17/web/tools.php on line 161

Warning: Undefined variable $ub in /var/www/clients/client1/web17/web/tools.php on line 149
Warning: Undefined variable $ub in /var/www/clients/client1/web17/web/tools.php on line 161
Deprecated: strripos(): Passing null to parameter #2 ($needle) of type string is deprecated in /var/www/clients/client1/web17/web/tools.php on line 161
 |
|
| Ref.: 4653 | | 285 000,00 € TTC |
|
| | | | |
| | |
|
| EXCLUSIF AUXERRE - COEUR DE VILLE, AU PIED DES COMMERCES |
Warning: Undefined variable $ub in /var/www/clients/client1/web17/web/tools.php on line 149
Warning: Undefined variable $ub in /var/www/clients/client1/web17/web/tools.php on line 161
Deprecated: strripos(): Passing null to parameter #2 ($needle) of type string is deprecated in /var/www/clients/client1/web17/web/tools.php on line 161
 | Superbe Appartement duplex de 6/7 pièces principales au 2ème & 3ème étage avec ascenseur dans bonne Résidence - 196,10 m² habitables (loi carrez) - Au 3ème étage (accès privatif avec grande terrasse privative) - Entrée avec dégagement, placard, cuisine aménagée, beau séjour de 70 m², 1 chambre avec salle de bains, w.c./lave-mains ;
Au 2ème étage : Salon de 32 m², dégagement, 3 chambres, salle de bains, w.c. lingerie (avec sortie au 2ème étage).
Terrasse privative au 4ème étage.
Chauffage collectif Gaz.
Idéalement situé - au calme, Ensemble spacieux, lumineux, belles terrasses privatives avec jolie vue panoramique sur la ville.
Honoraires d'agence inclus charge acquéreur pour 20.000 Euros soit un prix Net Vendeur de 330.000 Euros.
Nombre de lots : 47 (dont 25 usage habitations & bureaux).
Charges de copropriété : 637 Euros/mois environ (chauffage compris et autres charges).
Pas de procédure en cours connue à ce jour.
Les informations sur les risques auxquels ce bien est exposé sont disponibles sur le site Géorisques : www. georisques. gouv. fr |
|
|
Warning: Undefined variable $ub in /var/www/clients/client1/web17/web/tools.php on line 149
Warning: Undefined variable $ub in /var/www/clients/client1/web17/web/tools.php on line 161
Deprecated: strripos(): Passing null to parameter #2 ($needle) of type string is deprecated in /var/www/clients/client1/web17/web/tools.php on line 161

Warning: Undefined variable $ub in /var/www/clients/client1/web17/web/tools.php on line 149
Warning: Undefined variable $ub in /var/www/clients/client1/web17/web/tools.php on line 161
Deprecated: strripos(): Passing null to parameter #2 ($needle) of type string is deprecated in /var/www/clients/client1/web17/web/tools.php on line 161

Warning: Undefined variable $ub in /var/www/clients/client1/web17/web/tools.php on line 149
Warning: Undefined variable $ub in /var/www/clients/client1/web17/web/tools.php on line 161
Deprecated: strripos(): Passing null to parameter #2 ($needle) of type string is deprecated in /var/www/clients/client1/web17/web/tools.php on line 161

Warning: Undefined variable $ub in /var/www/clients/client1/web17/web/tools.php on line 149
Warning: Undefined variable $ub in /var/www/clients/client1/web17/web/tools.php on line 161
Deprecated: strripos(): Passing null to parameter #2 ($needle) of type string is deprecated in /var/www/clients/client1/web17/web/tools.php on line 161

Warning: Undefined variable $ub in /var/www/clients/client1/web17/web/tools.php on line 149
Warning: Undefined variable $ub in /var/www/clients/client1/web17/web/tools.php on line 161
Deprecated: strripos(): Passing null to parameter #2 ($needle) of type string is deprecated in /var/www/clients/client1/web17/web/tools.php on line 161

Warning: Undefined variable $ub in /var/www/clients/client1/web17/web/tools.php on line 149
Warning: Undefined variable $ub in /var/www/clients/client1/web17/web/tools.php on line 161
Deprecated: strripos(): Passing null to parameter #2 ($needle) of type string is deprecated in /var/www/clients/client1/web17/web/tools.php on line 161

Warning: Undefined variable $ub in /var/www/clients/client1/web17/web/tools.php on line 149
Warning: Undefined variable $ub in /var/www/clients/client1/web17/web/tools.php on line 161
Deprecated: strripos(): Passing null to parameter #2 ($needle) of type string is deprecated in /var/www/clients/client1/web17/web/tools.php on line 161

Warning: Undefined variable $ub in /var/www/clients/client1/web17/web/tools.php on line 149
Warning: Undefined variable $ub in /var/www/clients/client1/web17/web/tools.php on line 161
Deprecated: strripos(): Passing null to parameter #2 ($needle) of type string is deprecated in /var/www/clients/client1/web17/web/tools.php on line 161

Warning: Undefined variable $ub in /var/www/clients/client1/web17/web/tools.php on line 149
Warning: Undefined variable $ub in /var/www/clients/client1/web17/web/tools.php on line 161
Deprecated: strripos(): Passing null to parameter #2 ($needle) of type string is deprecated in /var/www/clients/client1/web17/web/tools.php on line 161

Warning: Undefined variable $ub in /var/www/clients/client1/web17/web/tools.php on line 149
Warning: Undefined variable $ub in /var/www/clients/client1/web17/web/tools.php on line 161
Deprecated: strripos(): Passing null to parameter #2 ($needle) of type string is deprecated in /var/www/clients/client1/web17/web/tools.php on line 161

Warning: Undefined variable $ub in /var/www/clients/client1/web17/web/tools.php on line 149
Warning: Undefined variable $ub in /var/www/clients/client1/web17/web/tools.php on line 161
Deprecated: strripos(): Passing null to parameter #2 ($needle) of type string is deprecated in /var/www/clients/client1/web17/web/tools.php on line 161
 |
|
| Ref.: 4603 | | 350 000,00 € TTC |
|
| | | | |
| | | | |
|
| |